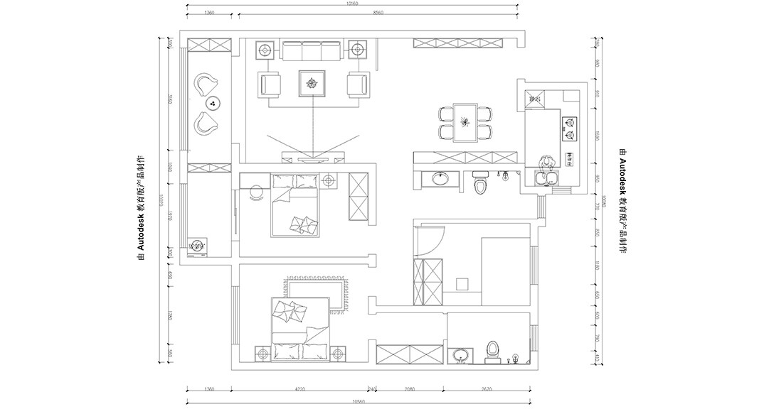
日照港第一生活區(qū)139㎡三室兩廳戶(hù)型平面布局圖
日照港第一生活區(qū)139㎡三室兩廳客廳新中式風(fēng)格裝修案例效果圖
日照港第一生活區(qū)139㎡三室兩廳餐廳新中式風(fēng)格裝修案例效果圖
日照港第一生活區(qū)139㎡三室兩廳主臥新中式風(fēng)格裝修案例效果圖
日照港第一生活區(qū)139㎡三室兩廳臥室新中式風(fēng)格裝修案例效果圖
日照港第一生活區(qū)139㎡三室兩廳書(shū)房新中式風(fēng)格裝修案例效果圖
