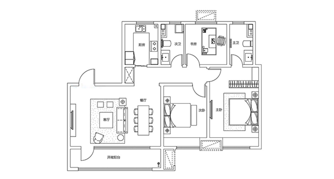
青特星城142㎡三室兩廳戶(hù)型平面布局圖
青特星城142㎡三室兩廳客廳新中式風(fēng)格裝修案例效果圖
青特星城142㎡三室兩廳客餐廳新中式風(fēng)格裝修案例效果圖
青特星城142㎡三室兩廳餐廳新中式風(fēng)格裝修案例效果圖
青特星城142㎡三室兩廳餐廳廚房新中式風(fēng)格裝修案例效果圖
青特星城142㎡三室兩廳廚房新中式風(fēng)格裝修案例效果圖
青特星城142㎡三室兩廳主臥新中式風(fēng)格裝修案例效果圖
青特星城142㎡三室兩廳次臥新中式風(fēng)格裝修案例效果圖
青特星城142㎡三室兩廳兒童房新中式風(fēng)格裝修案例效果圖
