
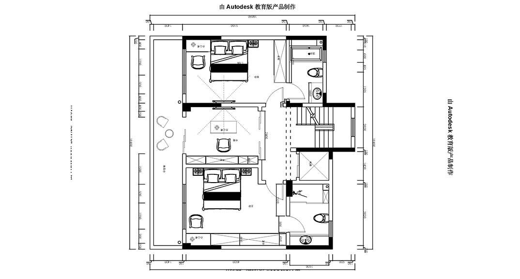
康達江山樾360㎡別墅戶型平面布局圖

康大江山樾360㎡別墅戶型平面布局圖

康大江山樾360㎡別墅戶型平面布局圖

康大江山樾360㎡別墅戶型平面布局圖

康大江山樾360㎡別墅戶型平面布局圖

康大江山樾360㎡別墅客廳歐式風格裝修案例效果圖

康大江山樾360㎡別墅餐廳歐式風格裝修案例效果圖

康大江山樾360㎡別墅臥室歐式風格裝修案例效果圖

康大江山樾360㎡別墅臥室歐式風格裝修案例效果圖

康大江山樾360㎡別墅書房歐式風格裝修案例效果圖

康大江山樾360㎡別墅浴室歐式風格裝修案例效果圖

康大江山樾360㎡別墅影音室歐式風格裝修案例效果圖